Description
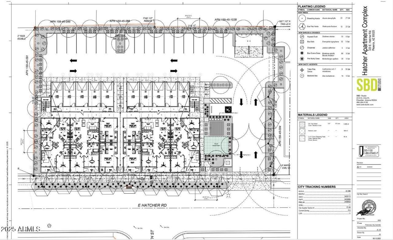
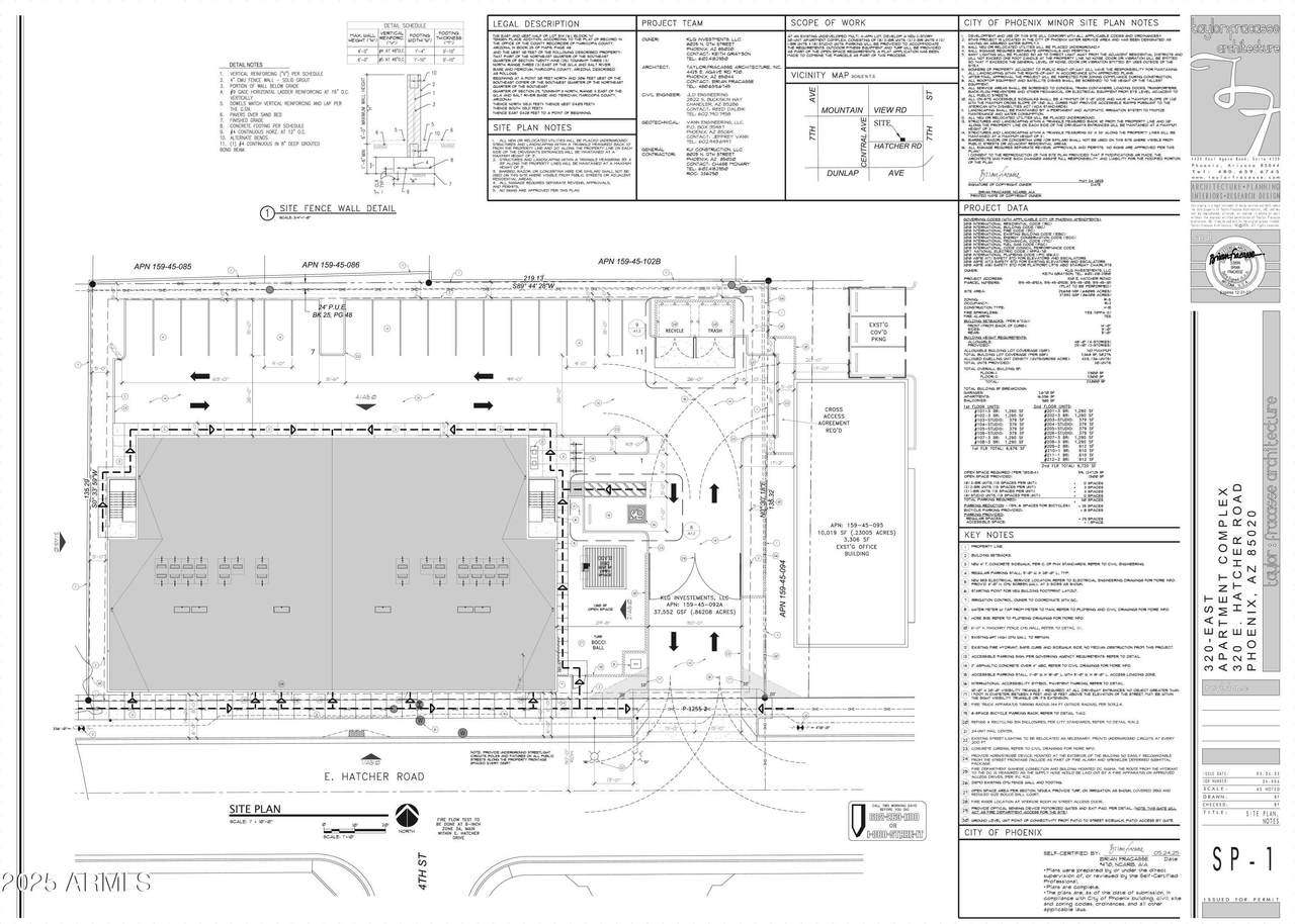
Plan set conveys with sale. Mylar is approved for re-plat. Permits for civil, grading and drainage, landscape/salvage, fire line, and backflow have been approved. Bonds have been purchased and assigned to permits for work in the easements. Architect and design team is self-certified and will have construction permits approved 5 days after site plan is approved. Site has been submitted for City review. This 2 story, 20 unit multi-family project is zoned as R-5 High Density Multi-Family located within the Hatcher District Overlay that allows restaurants, office, and retail within new developments. There are 10 garages, 20 additional surface parking spaces, 4 three bed/two bath, 6 two bed/two bath, 2 one bed/one bath, and 8 studios. The development consists of 16,396 square feet.
-
0BEDS
-
0.68ACRES
-
0BATHS
-
01/2 BATHS
School Information
Description
Plan set conveys with sale. Mylar is approved for re-plat. Permits for civil, grading and drainage, landscape/salvage, fire line, and backflow have been approved. Bonds have been purchased and assigned to permits for work in the easements. Architect and design team is self-certified and will have construction permits approved 5 days after site plan is approved. Site has been submitted for City review. This 2 story, 20 unit multi-family project is zoned as R-5 High Density Multi-Family located within the Hatcher District Overlay that allows restaurants, office, and retail within new developments. There are 10 garages, 20 additional surface parking spaces, 4 three bed/two bath, 6 two bed/two bath, 2 one bed/one bath, and 8 studios. The development consists of 16,396 square feet.
Related Properties
© 2025 Arizona Regional Multiple Listing Service, Inc. All rights reserved. All information should be verified by the recipient and none is guaranteed as accurate by ARMLS. The ARMLS logo indicates a property listed by a real estate brokerage other than KC Real Estate | My Home Group. Data last updated 2025-12-12T00:12:54.567.